Dizellə işləyən Mobil Hava Kompressoru

Dizellə işləyən Mobil Hava Kompressoru

Atlas Copco sizə peşəkar dizel mühərrikli Mobil Hava Kompressorunu təklif edir. Bu qurğu iki yüksək səmərəli kompressor komponentindən, Dizel mühərriki, soyutma, hava/yağ ayırma və idarəetmə sistemi, yüksək sistem etibarlılığı və tək kompressorun geniş tətbiq diapazonundan ibarətdir. Biz Çində peşəkar hava kompressor istehsalçısı və təchizatçısıyıq. Məsləhətləşməyə və satın almağa xoş gəlmisiniz.

Sorğu göndərin

Məhsul təsviri

Məhsula istinad

Standart Təchizat Sahəsi



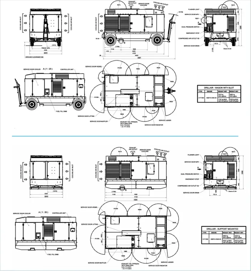
Atlas Copco X1300, Y1300 və XRS 1500-20 maye soyudulmuş, altı silindrli Cummins dizel mühərriki ilə təchiz edilmiş, susdurulmuş, iki mərhələli, yağ vurma vintli kompressorlardır.

Bölmə iki yüksək səmərəli kompressor elementindən, dizel mühərrikindən, soyutma, hava/yağ ayırma və idarəetmə sistemlərindən ibarətdir - bunların hamısı səsi nəmləndirən güclə örtülmüş polad korpusun içərisindədir.

Mülkiyyətin ən yaxşı dəyərini təmin etmək üçün məhsulun ümumi keyfiyyətinə, istifadəçinin rahatlığına, xidmətin asanlığına və qənaətcil əməliyyata xüsusi diqqət yetirilmişdir.




Mövcud Modellər

X1300  

 İki Mərhələ – 1250 cfm@435 psi – Cummins Dizel Mühərriki

Y1300

İki Mərhələli – 1165 cfm@508 psi – Cummins Dizel Mühərriki

XRS

1500-20 İki Mərhələ – 1434 cfm@290 psi – Cummins Dizel Mühərriki


Xüsusiyyətlər

• DrillAir™

• Oiltronix™ V2

• Əlavə 3% yanacaq qənaəti

• Neft ayırıcı gəminin yeni konsepsiyası

• XPR

• Dinamik axın sürəti

Faydaları

• Qazma sürətində 30% artım və tək bir kompressor ilə geniş tətbiq sahəsini əhatə edir

• Yüksək sistemin etibarlılığı, kompressorun yağ sistemində su əmələ gəlməsinin qarşısını almaq və elementin istifadə müddətini uzatmaq

• Heç bir əl ilə tənzimləyici klapan və ya təzyiq tənzimləyici xətlər onların donma problemlərini aradan qaldırmır

• OSE dəyişikliyi üçün 1 saata qənaət edin

• Daha çox tətbiqi əhatə etmək üçün geniş spektr təklif edin

• Yuyulma və kök doldurma zamanı 10% daha çox axın təklif edin



Texniki Parametrlər


Spesifikasiyalar və ölçülər


Prinsip Məlumatları



Kompressor elementi

Kompressorun keyfiyyəti istifadə olunan kompressor elementinin etibarlılığı, səmərəliliyi və davamlılığı ilə ölçülə bilər. Kompressor elementlərinin dizaynında onilliklər ərzində əldə edilən təcrübə nəticəsində bazarda ən səmərəli və etibarlı kompressorlar istehsal olunur.

Hava/Yağ Ayırıcı

Hava və yağın ayrılması filtr elementi ilə birləşdirilmiş mərkəzdənqaçma yağ separatoru vasitəsilə həyata keçirilir.

Daha yüksək maksimum iş təzyiqi üçün nəzərdə tutulmuş separator möhürlənmiş yüksək təzyiqli təhlükəsizlik relyef klapan, minimum təzyiq klapan, avtomatik üfürmə klapan və təzyiq tənzimləyicisi ilə təchiz edilmişdir.

Soyutma sistemi

Mühərrik maye-soyuducu və intercooler, kompressor isə yağ soyuducusu ilə təchiz edilmişdir. Soyutma sistemi 50°C-yə qədər ətraf mühit şəraitində, bütün tavan qapıları bağlı olaraq fasiləsiz işləmək üçün uyğun şəkildə hazırlanmışdır.

Kompressor Tənzimləmə Sistemi

Dizellə işləyən Mobil Hava Kompressorunun tənzimləmə sistemi hava filtrlərindən, hava qəbuledicisi/yağ ayırıcısından, kompressor elementindən, giriş klapanlı giriş klapan komplektindən və üfürmə klapanından ibarətdir; hamısı elektron tənzimləmə sistemi ilə idarə olunur.

Dəyişən tənzimləmə sistemi kompressor təzyiqinə və axınına tam nəzarət edir. O, bir neçə nöqtədə hava təzyiqini və temperaturunu ölçməklə gəmi təzyiqini və çıxış axınına nəzarət edir və ölçülən dəyərlərə uyğun gələn hava giriş klapanını, mühərrik sürətini və üfürmə klapanını idarə edir.

Ekonomik yanacaq sərfiyyatı mühərrik sürətini hava tələbatına uyğunlaşdıran tam avtomatik pilləsiz sürət tənzimləyicisi ilə təmin edilir.

Boşaltma çıxışları

Sıxılmış hava 1 x G2-dən mövcuddur.


Mühərrik

Cummins Dizel Mühərriki

Dizel mühərrikli Mobil Hava Kompressoru maye ilə soyudulmuş, altı silindrli Cummins QSZ13-C550-30 dizel mühərriki ilə idarə olunur. Mühərrikin gücü ağır yük muftası vasitəsilə kompressor elementinə ötürülür.

Elektrik sistemi

X1300, Y1300 və XRS 1500-20 24 voltluq mənfi torpaq elektrik sistemi ilə təchiz edilmişdir.

Alətlər - XC4003

XC4003 idarəetmə paneli kompressor örtüyünün ön hissəsində yerləşir.

İntuitiv Atlas Copco XC4003 nəzarətçi bütün funksiyaları barmaqlarınızın ucunda rahatlıqla idarə etmək asandır. Nəzarətçi həmçinin mühərrik ECU əməliyyat sistemini və müxtəlif parametrlər üzrə bir sıra təhlükəsizlik xəbərdarlıqlarını və bağlanmalarını (aşağıda verilmişdir) idarə edir.

XC4003 Nəzarətçi Funksionallığı:

• Əsas Ekran

- Damar təzyiqi

- Yanacaq səviyyəsi

- İş saatları

- RPM

- Hava axını CFM

• Ümumi Parametrlər

- DPF stasionar bərpası

- Mühərrikin diaqnostikası

- Avtomatik Başlama/Yükləmə/Stop

- Dillər

- Ölçü vahidləri

• Ölçmələr

- Yanacaq sərfiyyatı

- Mühərrikin soyuducu temperaturu

- Kompressor elementinin temperaturu

- Damar təzyiqi

- Mühərrik yükü

- Mühərrik yağının təzyiqi

- DPF Soot Yükü

- Yanacağın temperaturu

- Batareyanın gərginliyi

- Tənzimləyici təzyiq

- Yüklü/Boşaltma Saatları

- Uğurlu/Uğursuz Başlanğıclar

- Xidmət taymerləri (2)

• Əməliyyat Nəzarətləri

- Əvvəlcədən təyin edilmiş axın və ya iş təzyiqi

• Xidmət

- Məlumat trendi

- Layihə ehtiyat nüsxəsi

• Siqnal

- Aktiv Siqnallar

- Hadisələrin Tarixçəsi

- Siqnalların Tarixçəsi



Təhlükəsizlik Cihazları

Kompressor standart olaraq kompressor və mühərrik üçün təhlükəsizlik cihazları ilə təchiz edilmişdir. Cihaz aşağıdakı hallarda tamamilə söndürüləcək:

- Mühərrik yağının temperaturu çox yüksək qalxır

- Mühərrik yağının təzyiqinin çox aşağı düşməsi

- Sıxılmış havanın çıxış temperaturu müəyyən edilmiş diapazondan kənara çıxır.

- Aşağı yanacaq səviyyəsi

Başlanğıc motoru, həmçinin, həddindən artıq müddət ərzində və ya mühərrik işləyərkən həddindən artıq yüklənmədən qorunur.


Bədən işi

Dizellə işləyən Mobil Hava Kompressoru standart olaraq əla korroziyadan qorunma təmin edən toz boya boyası ilə sinklə örtülmüş polad örtüklə təchiz edilir.

Geniş qapılar bütün komponentlərə tam xidmət girişini təmin edir.


İstehsal və Ətraf Mühit Standartları

X1300, Y1300 və XRS 1500-20 ciddi ISO 9001 qaydalarına uyğun olaraq və tam tətbiq edilmiş Ətraf Mühit Mühafizəsi tərəfindən istehsal olunur.

ISO 14001 tələblərinə cavab verən İdarəetmə Sistemi. Ətraf mühitə minimum mənfi təsirin təmin edilməsinə diqqət yetirilmişdir.


Təqdim olunan Sənədlər

Vahid aşağıdakı sənədlər və sertifikatlarla təhvil verilir:

- Kompressor üçün ehtiyat hissələrinin siyahısı.

- Həm kompressor, həm də mühərrik üçün təlimat kitabçası.

- Maşın sınaq sertifikatı.

- Gəmi sertifikatı.

Zəmanət əhatəsi

• Zəmanət məlumatı üçün məhsulun təqdimatına müraciət edin.

• Genişləndirilmiş Zəmanət Proqramları mövcuddur; əlavə məlumat üçün yerli satış nümayəndəsi ilə əlaqə saxlayın.

* Qeyd: Məhsullarda davamlı təkmilləşdirmələrə görə texniki xüsusiyyətlər əvvəlcədən xəbərdarlıq edilmədən dəyişdirilə bilər.





Qaynar Teqlər: Dizellə işləyən Mobil Hava Kompressoru, Çin, İstehsalçı, Təchizatçı, Zavod

Əlaqədar Kateqoriya

Sorğu göndərin

Sorğunuzu aşağıdakı formada verməkdən çekinmeyin. 24 saat ərzində sizə cavab verəcəyik.
X
Biz sizə daha yaxşı baxış təcrübəsi təklif etmək, sayt trafikini təhlil etmək və məzmunu fərdiləşdirmək üçün kukilərdən istifadə edirik. Bu saytdan istifadə etməklə siz kukilərdən istifadəmizlə razılaşırsınız. Məxfilik Siyasəti
Rədd edin Qəbul edin